logements hbm châtelaine


3ème rang, 3ème prix
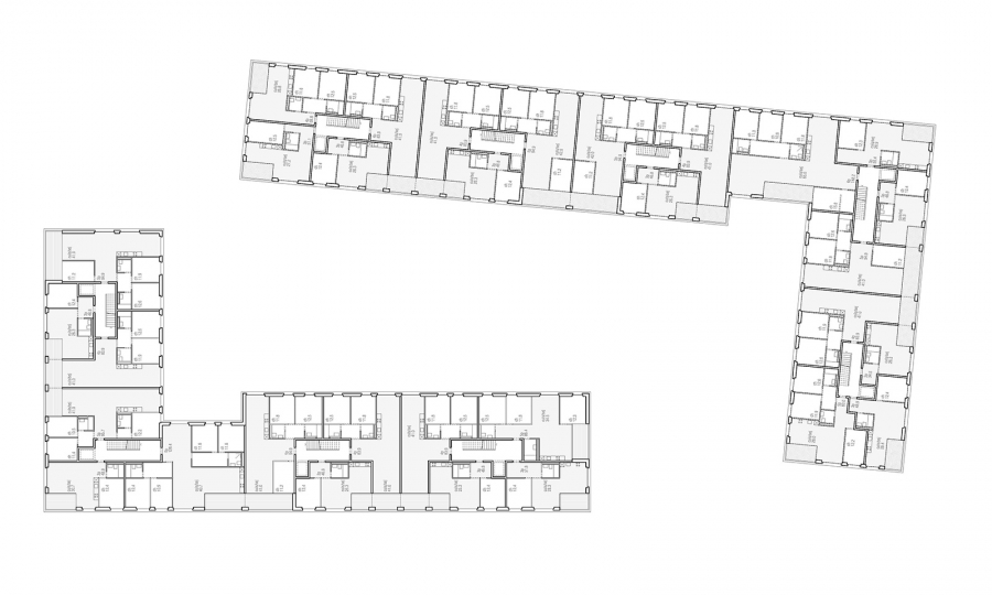
Concours pour la construction logements économiques, surfaces d'activités et parking souterrain à Châtelaine, Genève

En association avec Baillif-Loponte et associés SA et Verzone Woods Architectes Sàrl

Maître de l'ouvrage:
Fondation HBM Emile Dupont

Lieu:
Genève

Année:
2015









images de synthèse: playtime