projets
réalisés
concours
actu
bureau
liens
contact
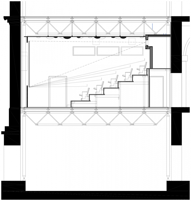
transformation salle de projetction
Transformation de la salle de projection de Fonction : Cinéma à la Maison des Arts du Grütli
En association avec Féroé architectes
Maître de l’ouvrage :
Fonction : Cinéma
Lieu :
Genève
Année :
2007 - 2008
transformation salle de projetction
Transformation de la salle de projection de Fonction : Cinéma à la Maison des Arts du Grütli
En association avec Féroé architectes
Maître de l’ouvrage :
Fonction : Cinéma
Lieu :
Genève
Année :
2007 - 2008