logements coopérative, PSBL et PPE vernier
Réalisation d'un bâtiment de logements Minergie P-ECO au chemin du Croissant à Vernier
Maîtres de l'ouvrage:
Coopérative de l'habitat associatif CODHA
Construction Perret SA
Direction des travaux:
Construction Perret SA
Ingénieur civil:
OU3 SA
Lieu:
Vernier, Genève
Année:
2019 - 2025












photos : Johannes Marburg
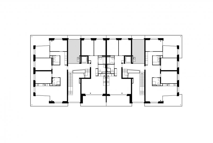
Cet immeuble aux teintes chaleureuses et entièrement revêtu de bois abrite deux allées : la première distribue les logements coopératifs de la Codha, alors que la seconde distribue les logements en propriété sans but lucratif (PSBL) destinés aux coopérateurs de la Codha et les logements en propriété par étage (PPE) commercialisés par CPSA.
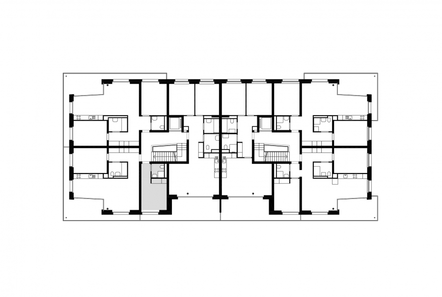
Les deux allées se relient par le rez-de-chaussée traversant qui accueille une salle commune, une buanderie, deux locaux vélos, ainsi que trois logements. Chacune des deux allées bénéficie au 1er étage d’un espace commun à la disposition des habitants. En toiture, une terrasse commune agrémentée de potagers offre un espace de rencontre jouissant du soleil et de la vue.
Les typologies ont été conçues pour favoriser les vues dégagées et la fluidité des circulations, et pour offrir un sentiment de générosité spatiale. Plusieurs pièces sont reliées par les balcons qui s’élargissent dans le prolongement des cuisines et des séjours pour devenir de véritables surfaces habitables supplémentaires. A chaque étage, des chambres semi-indépendantes peuvent être liées à l’un ou l’autre des appartements, ou devenir des pièces multifonctionnelles, semi-indépendantes directement accessibles depuis la cage d’escalier.
La qualité des aménagements extérieurs participe à la qualité de vie de l’ensemble. Ils accompagnent les habitants jusqu’à l’entrée de leur immeuble à travers différents seuils et filtres qui marquent subtilement le passage de l’espace public à l’espace privé. Les rez-de-chaussée, largement ouverts et traversants, participent à la vie du quartier. Située le long du chemin du Croissant, la salle commune s’affirme comme un lieu d’animation et de rencontre, renforçant le lien entre l’immeuble et son environnement urbain.
Le bâtiment est construit pour atteindre les exigences Minergie-P-ECO avec des matériaux sains, des énergies renouvelables et une technique dans l’esprit «low-tech».